0
Zum Inhalt springen
Projekte
Werkliste
Büro
Kontakt
Menü öffnen
Menü schließen
Projekte
Werkliste
Büro
Kontakt
Menü öffnen
Menü schließen
Projekte
Werkliste
Büro
Kontakt
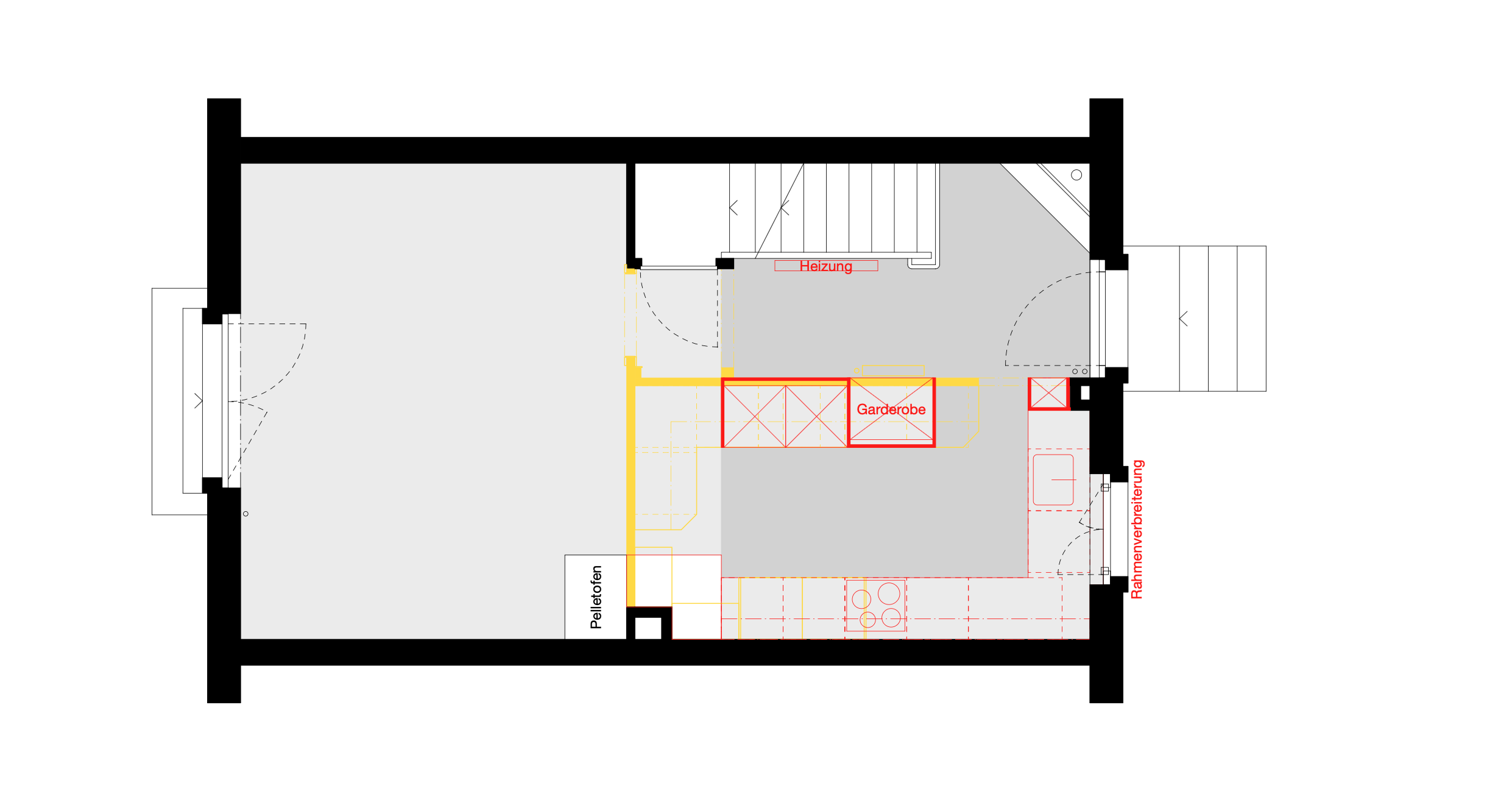
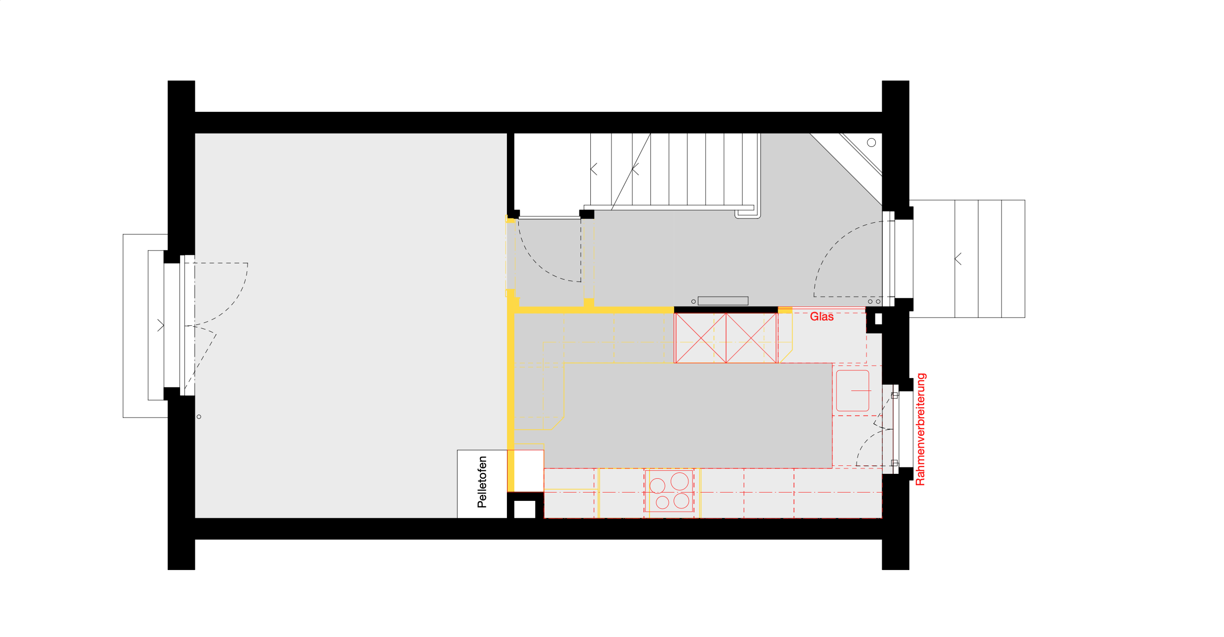
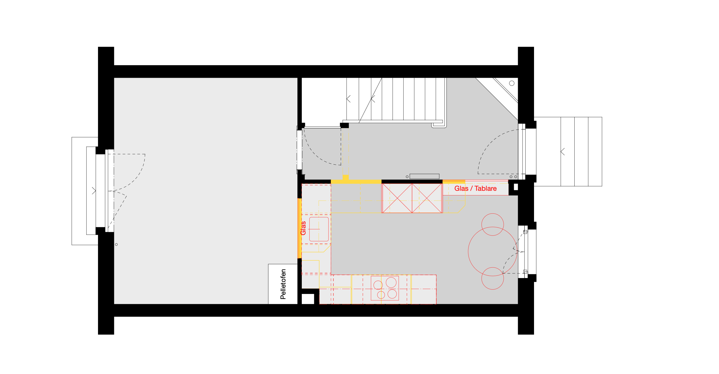
Machbarkeitsstudie REFH Laubegg, Zürich
2025
Machbarkeitsstudie
Bauherrschaft privat
Direktauftrag
Zurück
Zurück
Gestaltung Ruheraum SIA
Weiter
Weiter
Umbau Turnerstrasse